Jurys de l’atelier Terrains (ULB/ENA Rabat)

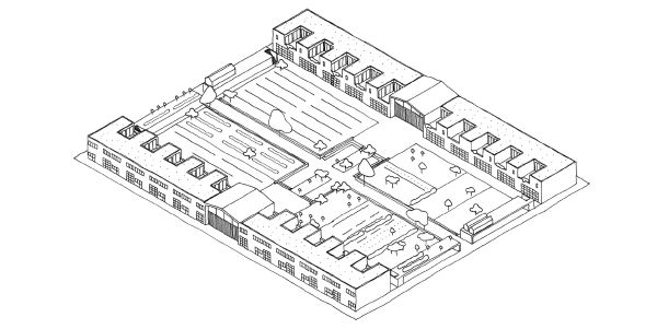
Le jury est le moment d’évaluation du travail développé par les étudiant.e.s durant le quadrimestre d’automne. Ce travail a été conduit dans le contexte de confinement progressif des étudiant.e.s en raison de la crise sanitaire. Cette condition nous a amenés à développer un travail basé sur des éléments d’analyse antérieurs (travail sur les matériaux urbains) et sur de sources bibliographiques. Il s’agit d’un travail exploratoire sur un matériau urbain alliant résidence et jardin productif. Le travail a visé à explorer les modalités techniques d’un alliage de deux types de problématiques qui, dans les stratégies modernistes de l’aménagement du territoire, sont généralement considérées comme l’affaire de spécialistes mutuellement indifférents et opérants en territoires éloignés, le jardin (le jardin productif ou champ horticole) et la résidence (l’habitation considérée aux divers niveaux par lesquels elle finit par se configurer comme «structure tissulaire»…). Sur la base d’une analyse d’une série de «rétro-projets» choisis, c’est-à-dire d’œuvres parfois très anciennes mais susceptibles d’une appropriation au titre de paradigme, les étudiant.e.s ont été invités à développer un projet situé dans le territoire du Grand Tétouan dans lequel la résidence et le jardin dans sa double vocation nourricière et récréative s’allient en symbioses sensibles et équilibrées.

Membres du jury  

Saloua Ater (architecte, ENA-Tétouan)

Hakim Cherkaoui (ENA-Rabat)

Lorenzo Fabian (IUAV)

Laurent Hodebert (ENSAM)

Rachid Amerniss (Agence Urbaine de Tétouan) 

Victor Brunfaut, Bertrand Terlinden, Sara Tassi (ULB)